Обяви За нас Контакти
Продава 3-СТАЕН
град София, Манастирски ливади
бул. България
639 128 €
1 250 025.72 лв.

(2 755 €, 5 388.31 лв./m2)
Не се начислява ДДС
История на цената
Коригирана в 15:14 на 26 септември, 2024 год.
Обявата е посетена 2674 пъти.
Площ:
232 m2
Етаж:
9-ти от 10
Газ:
ДА
Строителство:
Тухла,

Описание на имота:


Луксозен тристаен апартамент в Pulse Tower Wellplex, Манастирски Ливади
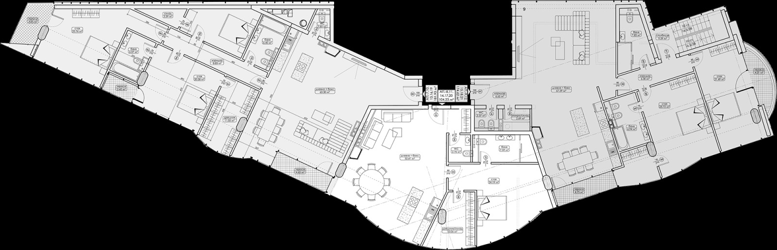
Предлагаме на вашето внимание изключителен тристаен апартамент в Pulse Tower Wellplex, разположен на етаж с обща площ 232,41 кв.м, включваща общите части. Апартаментът е проектиран с фокус върху висококачествени материали и модерен интериор, който отговаря на най-високите стандарти за комфорт и стил.
Изцяло завършен до ключ с дизайнерско луксозно обзавеждане.
Високи тавани от 3,10 м, които придават допълнителна просторност и светлина на помещенията
360-градусова панорамна гледка към Витоша и центъра на София.
Само 3 апартамента на етаж, което гарантира спокойствие и уединение.
Разпределение на апартамента:
Голям дневен тракт с кухня, трапезария и тераса идеален за семейни събирания и социални срещи.
Просторна спалня с гардеробна и собствена баня с тоалетна, осигуряваща максимално уединение и удобство.
Втора спалня с достъп до тераса подходяща както за гости, така и за деца или офис пространство.
Втора баня с тоалетна, която добавя удобство за всички обитатели.
Допълнителна тоалетна за гости, която е лесно достъпна за всички посетители.
Удобства в комплекса Pulse Tower Wellplex
Pulse Tower Wellplex комбинира луксозни жилищни зони с първокласни уелнес и фитнес съоръжения. На територията на комплекса ще откриете:
Фитнес център от веригата Pulse Fitness & Spa най-модерно оборудваният в София.
Закрита СПА зона с богата гама от съоръжения за релаксация и възстановяване.
25-метров закрит басейн, проектиран за сериозни тренировки и релакс.
Външен плаж с водно огледало идеално място за почивка през топлите месеци.
Средиземноморски ресторант Rose, предлагащ изискана кухня и стилна атмосфера за специални поводи и ежедневни удоволствия.
Автомивка, която е на разположение на жителите на комплекса.
Сигурност и обслужване
Подземен паркинг с удобен достъп и контролирана сигурност.
Жива охрана, контрол на достъпа и видеонаблюдение, които гарантират безопасността на обитателите.
Рецепция с 24-часово обслужване, за да се грижи за нуждите на всички жители.
Ежедневно почистване на общите части за безупречна чистота и поддръжка.
Инвестиционни предимства и условия за плащане
Възможност за разсрочено плащане до 120 месечни вноски директно към инвеститора.
Отличен потенциал за висока доходност при покупка с инвестиционна цел, благодарение на ключовата локация и качествените удобства на комплекса.
Какво е Wellplex?
Pulse Tower Wellplex е първият по рода си комплекс в България, съчетаващ концепцията за wellness и residential living в едно интегрирано решение. Wellplex е повече от жилищна сграда това е място, което съчетава луксозния начин на живот с активен и здравословен начин на живот, осигурявайки на своите обитатели достъп до най-модерните фитнес и уелнес удобства, точно до техния дом.
Pulse Tower Wellplex предлага несравнима комбинация от стил, удобство и функционалност. Това е възможност да инвестирате в имот, който предоставя всичко необходимо за изискан градски живот на най-високо ниво.
За повече информация относно проекта и всички удобства, посетете Pulse Tower Wellplex.
Особености
Тухла
Асансьор
С гараж
С паркинг
Интернет връзка
Обзаведен
Видео наблюдение
Охрана
В затворен комплекс
За контакт:
0878236671
Агенция:
БИЛДИНГ КОРПОРЕЙШЪН ЕООД
0878236671
Медал за прослужено време
В imot.bg от 2007 г.
pbc.imot.bg
Адрес:
област София, гр. София, Софийски околовръстен път 251, ж.к. Младост 4, София, 1715
http://www.pbc.bg
ИЗПРАТИ ЗАПИТВАНЕ
ИЗПРАТИ ЗАПИТВАНЕТО

Продава 3-СТАЕН
град София, Манастирски ливади
бул. България
Обява: 1c172069573516037

639 128 €
1 250 025.72 лв.
История на цената
(2 755 €, 5 388.31 лв./m2)

Не се начислява ДДС
ЗАПАЗИ ОБЯВАТА

Местоположение: град София, Манастирски ливади, бул. България